It is a company that aims to be the best in the field of soil pollution purification and industrial machinery by challenging through research and development.
| MODEL NO. | Capacity (m3/hr) |
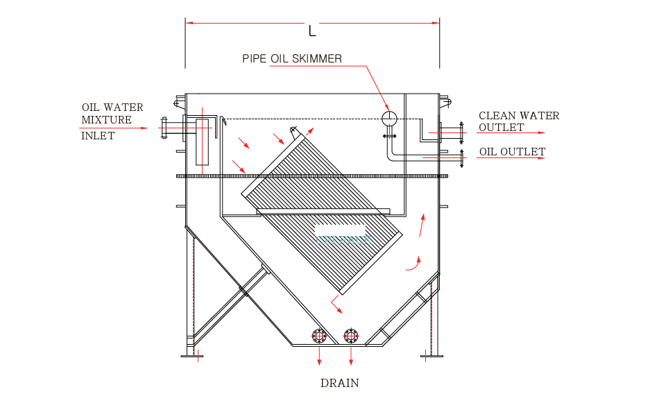
Dimensions(including the filter unit) (L X W X H) (M) |
SHIPPING WEIGHT(T) |
OPERATING WEIGHT(T) |
Download File | ||
| DXF | Sepec | ||||||
| ENICPI-M15 | 15 | 2.0X0.32X0.9 | 0.9 | 2.0 | |||
| ENICPI-M30 | 30 | 2.90X0.62X1.22 | 2.0 | 6.0 | |||
| ENICPI-M60 | 60 | 3.40X1.22X1.22 | 2.6 | 12.0 | |||
| ENICPI-M90 | 90 | 3.60X1.22X1.53 | 3.0 | 15.0 | |||
| ENICPI-M120 | 120 | 4.90X1.52X1.53 | 3.9 | 20.0 | |||
| ENICPI-M180 | 180 | 4.90X1.82X1.53 | 4.5 | 21.3 | |||
| ENICPI-M270 | 270 | 5.80X1.82X1.84 | 6.5 | 32 | |||
| ENICPI-M450 | 450 | 6.50X2.13X2.45 | 13.5 | 76 | |||
| ENICPI-M720 | 720 | 8.20X2.13X2.45 | 21.5 | 92 | |||
| ENICPI-M1170 | 1170 | 8.90X2.44X3.05 | 35.0 | 134 | |||